Πέμ, 6 Ιουν. 2024 - 6:14

“Λουκέτο” στην πρόσβαση οχημάτων

Παρελθόν αναμένεται να αποτελέσει η κεντρική ράμπα της πλατείας Παπάγου, καθώς συστηματικά εισέρχονται οχήματα με ό,τι αυτό συνεπάγεται για την εικόνα της και τη λειτουργία των…

Παραφωνία… στη γενικότερη ποιοτική ανάπλαση
Πέμ, 13 Απρ. 2023 - 6:14

Παραφωνία… στη γενικότερη ποιοτική ανάπλαση

Σημαντικές και άκρως απαραίτητες βελτιωτικές παρεμβάσεις δέχεται η πλατεία Παπάγου με μέριμνα του Δήμου Σύρου – Ερμούπολης, όπου και αντικαθίστανται τα παλαιά δάπεδα που…

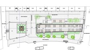
Ανανεώνεται η όψη της πλατείας Παπάγου
Τετ, 5 Απρ. 2023 - 6:14

Ανανεώνεται η όψη της πλατείας Παπάγου

“Οργασμός” εργασιών επικρατεί στην πλατεία Παπάγου τις τελευταίες ημέρες και με ευθύνη του Δήμου Σύρου – Ερμούπολης, προκειμένου ο εν λόγω χώρος να αλλάξει και να βελτιώσει την…

Προσπάθεια ουσιαστικής λύσης για τα δάπεδα
Πέμ, 1 Δεκ. 2022 - 6:14

Προσπάθεια ουσιαστικής λύσης για τα δάπεδα

Λύσεις ουσιαστικές και οριστικές για τα δάπεδα της πλατείας Παπάγου αναζητά η Δημοτική Αρχή, σύμφωνα με όσα γνωστοποίησε ο Αντιδήμαρχος Τεχνικών Υπηρεσιών, Μηνάς Αληφραγκής σε…

Αναβαθμίζεται αισθητικά η πλατεία Παπάγου
Τετ, 15 Ιουν. 2022 - 6:14

Αναβαθμίζεται αισθητικά η πλατεία Παπάγου

Εκτεταμένες εργασίες φροντίδας των παρτεριών που περιβάλλουν το τμήμα της πλατείας Παπάγου επί του οποίου τοποθετήθηκε το άγαλμα του Μάρκου Βαμβακάρη ανέπτυξε η Υπηρεσία…

Αποκατάσταση δαπέδου εν όψει τοποθέτησης του αγάλματος του Μάρκου Βαμβακάρη
Τετ, 6 Απρ. 2022 - 6:14

Αποκατάσταση δαπέδου εν όψει τοποθέτησης του αγάλματος του Μάρκου Βαμβακάρη

Η αντικατάσταση των κατεστραμμένων δαπέδων που θα περιβάλλουν το άγαλμα του Μάρκου Βαμβακάρη στην πλατεία Παπάγου είναι μία σημαντική παρέμβαση η οποία πρέπει να υλοποιηθεί, εν…

Αναγκαίες παρεμβάσεις για τα εγκαίνια του αγάλματος

Αποκατάσταση δαπέδου εν όψει τοποθέτησης του αγάλματος του Μάρκου Βαμβακάρη

06 Απριλίου 2022 - 06:14

Η αντικατάσταση των κατεστραμμένων δαπέδων που θα περιβάλλουν το άγαλμα του Μάρκου Βαμβακάρη στην πλατεία Παπάγου είναι μία σημαντική παρέμβαση η οποί...

Με φροντίδα από τον εφοπλιστή και γιο του αείμνηστου Πατριάρχη του Ρεμπέτικου, Βασίλη Βαμβακάρη

Διαμόρφωση βάσης για την τοποθέτηση του αγάλματος του Μ. Βαμβακάρη

23 Φεβρουαρίου 2022 - 06:14

Την πλήρη φροντίδα για τη δημιουργία και μεταφορά του γλυπτού αγάλματος του Μάρκου Βαμβακάρη έχει αναλάβει η οικογένεια του Πατριάρχη του Ρεμπέτικου κ...

Εργασίες από το Τμήμα Μικρών Έργων του Δήμου Σύρου – Ερμούπολης προς ανακούφιση των προβλημάτων που αντιμετώπιζαν οι επιχειρηματίες της περιοχής

Νέα δάπεδα στην πλατεία Παπάγου

14 Φεβρουαρίου 2022 - 06:14

Σε αντικαταστάσεις των σχεδόν πλήρως κατεστραμμένων δαπέδων στην πλατεία Παπάγου προχώρησε ο Δήμος Σύρου – Ερμούπολης, προκειμένου να απαντήσει στην π...

Θετική έγκριση από το Υπουργείο Πολιτισμού για την τοποθέτησή του χωρίς τη βάση, δεδομένης πλέον της νομιμοποίησης της υφιστάμενης κατασκευής της πλατείας

Αναβαθμίζεται η πλατεία Παπάγου με το άγαλμα του Μάρκου Βαμβακάρη

18 Ιουνίου 2021 - 06:19

Την εικόνα που αρμόζει σε έναν ανοικτό χώρο, ο οποίος βρίσκεται σε παραλιακή ζώνη αναμένεται να λάβει η πλατεία Παπάγου στην Ερμούπολη, καθώς μετά από...

Το Λιμενικό Ταμείο Σύρου προχωρά τις διαδικασίες για τη δυνατότητα τοποθέτησης ανεμοφρακτών στο παραλιακό τμήμα, με φόντο τις νέες συνθήκες που διαμορφώνει η πανδημία στη λειτουργία του κλάδου

Προετοιμασία της εστίασης για την αξιοποίηση εξωτερικών χώρων

18 Φεβρουαρίου 2021 - 06:20
Η μελέτη για την τοποθέτηση σκιάστρων εντάσσεται στον συνολικό διαγωνισμό για τα έργα της λιμενικής ζώνης Ερμούπολης
Θετική εισήγηση του Υπ. Πολιτισμού για τη διατήρηση της σημερινής κατασκευής της πλατείας Παπάγου

Νομιμοποίηση της υφιστάμενης κατάστασης

17 Οκτωβρίου 2019 - 06:19
Αναμονή για το επίσημο έγγραφο βάσει του οποίου θα αποφανθεί οριστικά το ΣτΕ τον Ιανουάριο του 2020 για τη συμμόρφωση του Δήμου Σύρου – Ερμούπολης
Η νέα Δημοτική Αρχή παρακολουθεί στενά την υπόθεση της πλατείας Παπάγου με φόντο τις απαιτήσεις συμμόρφωσης από το ΣτΕ

Αναμονή για την απόφαση του Υπ. Πολιτισμού

25 Σεπτεμβρίου 2019 - 06:19
Μέχρι τις 9 Οκτωβρίου πρέπει να έχει ληφθεί η απάντηση για τη μελέτη του Δήμου, αφού θα υπάρξει συνεδρίαση του αρμόδιου Συμβουλίου του ΣτΕ
Εργασίες στα ξύλινα δάπεδα της πλατείας Παπάγου

Ξεκίνησε η αποκατάσταση

15 Ιουλίου 2019 - 06:14

Το αποτέλεσμα των εργασιών της αντικατάστασης του ξύλινου φθαρμένου δαπέδου της πλατείας Παπάγου αναμένουν οι επιχειρηματίες της περιοχής, οι οποίοι κ...

Εντός των επόμενων ημερών η αποκατάσταση του φθαρμένου δαπέδου στην πλατεία Παπάγου

Διευκόλυνση στη λειτουργία των επιχειρήσεων

03 Ιουλίου 2019 - 06:20
Συνάντηση του Αντιδημάρχου Τεχνικών Υπηρεσιών με τους επιχειρηματίες της περιοχής δεδομένης της θερινής περιόδου
Η Δημοτική Αρχή Σύρου - Ερμούπολης έθεσε προς ψήφιση στο δημοτικό συμβούλιο τη μελέτη ανάπλασης, χωρίς πρώτα να την έχει αποστείλει – όπως απαιτεί το ΣτΕ – στο Υπ. Πολιτισμού

Αδικαιολόγητες καθυστερήσεις για την πλατεία Παπάγου

03 Μαΐου 2019 - 06:20
Και δεύτερο έγγραφο από Επιτροπή του ΣτΕ ζητούσε τάχιστες ενέργειες συμμόρφωσης από τον Δήμο, το οποίο και δεν γνωστοποιήθηκε εγκαίρως στους συμβούλους
Subscribe to Πλατεία Παπάγου