Τις ρητές κατευθύνσεις συμμόρφωσης από το ΣτΕ για την υπόθεση της πλατείας Παπάγου παραβλέπει προκλητικά η Δημοτική Αρχή του Δήμου Σύρου – Ερμούπολης, προσθέτοντας αδικαιολόγητη καθυστέρηση στην υλοποίηση παρεμβάσεων (αποκατάστασης, συντήρησης και τοποθέτησης αγάλματος του Μ. Βαμβακάρη) στον συγκεκριμένο χώρο, αφού θέλησε να φέρει άσκοπα προς έγκριση στο Δημοτικό Συμβούλιο τη νέα μελέτη, χωρίς να την έχει αποστείλει – ως όφειλε – πρωτίστως για έλεγχο στο Υπ. Πολιτισμού.
Αν και με δεύτερο έγγραφό της, αρμόδια Επιτροπή του Συμβουλίου της Επικρατείας (ΣτΕ) κατά το τέλος Ιανουαρίου του 2019, έκανε λόγο για αδικαιολόγητη καθυστέρηση του Δήμου σε επίπεδο συμμόρφωσης με τα προβλεπόμενα, ωστόσο, η Δημοτική Αρχή ήρθε να προσθέσει επιπλέον καθυστέρηση σε ένα άκρως σοβαρό θέμα, που ταλαιπωρεί τους επιχειρηματίες που δραστηριοποιούνται στην περιοχή, ενώ παράλληλα αφήνει σε μία ατελείωτη... αναμονή τον χορηγό του αγάλματος και γιο του Πατριάρχη του Ρεμπέτικου, Βασίλη Βαμβακάρη, ο οποίος είχε την ευγενική πρόθεση να καλύψει το κόστος τοποθέτησής του, πέραν της δαπάνης φιλοτέχνησής του.
Παρά δε, τις συνεχείς επισημάνσεις της αντιπολίτευσης κυρίως, να ακολουθηθούν τάχιστα τα βήματα που προσδιορίζει το ΣτΕ, ώστε να γνωρίζει ο Δήμος πώς και πότε θα κάνει το έργο στην πλατεία Παπάγου που περιλαμβάνει πλέον και την τοποθέτηση του αγάλματος, η πλευρά της Δημοτικής Αρχής, επέλεξε τη δική της οδό κωλυσιεργίας, θέτοντας τη μελέτη πρώτα στο δημοτικό συμβούλιο, το οποίο επ΄ ουδενί δεν είναι αρμόδιο για την αισθητική κι αρχιτεκτονική αξιολόγηση των προβλεπόμενων επεμβάσεων.
Αντιθέτως μάλιστα, δεδομένου ότι το σημείο εντάσσεται στα όρια του ιστορικού τόπου, ο Δήμος όφειλε πρώτα να έχει ενεργήσει άμεσα προς το Υπ. Πολιτισμού, η πλευρά του οποίου θα εγκρίνει τη νέα μελέτη.
Τα βήματα που προσδιόριζε άλλωστε το ΣτΕ, ήταν γνωστά στη σημερινή Δημοτική Αρχή από τον Ιούλιο του 2017, οπότε και είχε γνωστοποιηθεί η απόφαση του Ανωτάτου Δικαστηρίου προς τον Δήμο κι ως εκ τούτου, είχε αποφασιστεί η εκπόνηση νέας μελέτης από την Τεχνική Υπηρεσία, ενώ είχε γίνει από το Δημοτικό Συμβούλιο, αποδεκτό και το αίτημα – ευγενική χορηγία της οικογένειας του Βαμβακάρη.
Δεδομένης της τεράστιας καθυστέρησης που παρατηρείται στις κινήσεις της Δημοτικής Αρχής για την προώθηση του θέματος, αφήνεται ανοικτό το ενδεχόμενο οι ενέργειές της να κρύβουν(;) ανυπαρξία μέριμνας για την οικονομική κάλυψη των παρεμβάσεων που πρέπει να υλοποιηθούν ή πρόθεση(;) μετάθεσης του θέματος σε μετεκλογική περίοδο.
Πρέπει να σημειωθεί πως, στην τελευταία συνεδρίαση του Δημοτικού Συμβουλίου έδωσαν το “παρών” και δύο εκ των επιχειρηματιών της περιοχής που διαφωνούν με τη χωροθέτηση του αγάλματος, εκφράζοντας τη δική τους αυστηρά προσωπική άποψη.
Το ΣτΕ υπέδειξε ως πρώτο και άμεσο βήμα την έγκριση από το Υπ. Πολιτισμού
Αναφορικά με τη διαδικασία που ακολούθησε η Δημοτική Αρχή αποδεικνύοντας περίτρανα πως χρονοτριβεί αδικαιολόγητα για τη σοβαρή υπόθεση της πλατείας Παπάγου, ο νομικός σύμβουλος που εκπροσωπούσε την ξενοδοχειακή μονάδα της περιοχής, Κώστας Απέργης διάβασε το απόσπασμα της απόφασης της πλευράς του ΣτΕ, που καταγράφει με σαφήνεια τον τρόπο συμμόρφωσης του Δήμου με τα προβλεπόμενα.
Δεδομένου πως η σημερινή εικόνα της πλατείας Παπάγου είναι αποτέλεσμα ημιτελούς έργου που δεν ολοκληρώθηκε μετά από απόφαση του ΣτΕ, που “ακύρωνε” τη σχετική μελέτη (κατόπιν προσφυγής), αφού δεν είχε λάβει την έγκριση της αρμόδιας Αρχιτεκτονικής Επιτροπής του Υπ. Πολιτισμού, η σημερινή Δημοτική Αρχή, ακόμη και βάσει λογικής, όφειλε να σκεφθεί πως άμεσα έπρεπε το νέο σχέδιο (με την προσθήκη του αγάλματος) να σταλεί στο ίδιο Υπουργείο.
Εξηγώντας τί σημαίνει συμμόρφωση για το ΣτΕ βάσει των αποφάσεών του, ο κ. Απέργης διάβασε τα εξής από το έγγραφο του Ανωτάτου Δικαστηρίου: “Οφείλει η διοίκηση (ο Δήμος δηλαδή) να ολοκληρώσει τη διαδικασία με τη λήψη εγγυητικής ή τυχόν απορριπτικής απόφασης της νέας μελέτης από το Υπ. Πολιτισμού και Αθλητισμού. Στη δε τελευταία περίπτωση, να προβεί στην απομάκρυνση των κατασκευών. Αυτό κατά τη λογική σειρά που έπρεπε να αντιμετωπίσουμε το θέμα”.
Κατά συνέπεια, πρόσθεσε ακόμη πως, “η μελέτη που εσείς (σσ. η Τεχνική Υπηρεσία) εκπονήσατε πρέπει να πάει στο Υπ. Πολιτισμού, να λάβετε την έγκριση και στη συνέχεια να έρθετε εδώ (σσ. στο Δημ. Συμβούλιο) και να πάρετε την απόφαση που πρέπει. Αν το Υπ. Πολιτισμού σας δώσει την έγκριση, η απόφαση αυτή, θα έχει τη θέση άδειας για το έργο. Θα πάψει να είναι αυθαίρετο. Εάν την απορρίψει, θα πρέπει να απομακρύνετε το έργο”.
Επέμεινε σε άσκοπες ενέργειες η Δημοτική Αρχή
Αν και σαφείς οι υποδείξεις συμμόρφωσης από το ΣτΕ, ωστόσο, η Δημοτική Αρχή επέμεινε στο δικό της πλάνο ενεργειών, για το οποίο τοποθετήθηκαν μεταξύ άλλων ο Αντιδήμαρχος Τεχνικών Υπηρεσιών, Φραγκίσκος Βακόνδιος, καθώς και ο Δήμαρχος Σύρου – Ερμούπολης, Γιώργος Μαραγκός.
Προσπερνώντας τα όσα ανέγνωσε ο κ. Απέργης προς ενημέρωση του σώματος και στην ερώτηση του επικεφαλής της μείζονος αντιπολίτευσης, Ανδρέα Γιαλόγλου, σχετικά με το γιατί δεν έχει προωθηθεί η μελέτη πρώτα στο Υπ. Πολιτισμού, ο κ. Βακόνδιος υποστήριξε τη “γραμμή” που διευκρίνισε το μέλος της Δημοτικής Αρχής και πρόεδρος του Δημοτικό Συμβουλίου, πως, δηλαδή ακολουθήθηκε η συμβουλή της νομικής υπηρεσίας του Δήμου και ήρθε το θέμα στο Δημοτικό Συμβούλιο.
“Σε όλα τα έργα που έχουμε παραλάβει, προτού βγάλουμε τις άδειες, οι περισσότερες μελέτες ήρθαν πρώτα στο Δημοτικό Συμβούλιο” υποστήριξε αρχικά ο Αντιδήμαρχος, λέγοντας μάλιστα πως κινήθηκε η Δημοτική Αρχή κατ΄ αυτόν τον τρόπο, για να μην εκφραστούν παράπονα από τους αιρετούς. “Γι αυτό τον λόγο σήμερα φέραμε την μελέτη εδώ, να τη γνωρίζουν και οι δημοτικοί σύμβουλοι και αμέσως μετά να φύγει για το Υπ. Πολιτισμού και βάσει της απόφασής του να κάνουμε τις όποιες ενέργειές μας” συμπλήρωσε ο ίδιος, ενώ σκιαγράφησε πως όποιες παρατηρήσεις υπάρξουν από το Υπ. Πολιτισμού θα πυροδοτήσουν νέο κύκλο αλλαγών στη μελέτη και αποφάσεων του Δημοτικού Συμβουλίου, φέρνοντας την επιφάνεια τις καθυστερήσεις που τελικώς προκαλεί η Δημοτική Αρχή για το θέμα.
Στο νήμα των λεγομένων του τοποθετήθηκε και ο Γιώργος Μαραγκός, επιμένοντας και ο ίδιος σε διαφορετική οδό από τις κατευθύνσεις του ΣτΕ, υπερασπιζόμενος εν τέλει μία ενέργεια που ήρθε να προσθέσει μόνον “εμπόδια” χρόνου.
“Εκτιμώ κι εγώ και φρονώ σύμφωνα με τις συμβουλές της Νομικής Υπηρεσίας αλλά και της Τεχνικής Υπηρεσίας ότι αυτή είναι η ορθή διαδικασία” παρατήρησε μεταξύ άλλων ο κ. Μαραγκός, λέγοντας πως μετά και την απόφαση του Υπ. Πολιτισμού, θα γίνει μία διαβούλευση.
Υπογράμμισαν την απαίτηση έγκρισης του Υπ. Πολιτισμού και διαβούλευσης
Από την πλευρά του, ο επικεφαλής της μείζονος αντιπολίτευσης, Ανδρέας Γιαλόγλου, επεσήμανε πως το δημοτικό συμβούλιο δεν είναι αρμόδιο να κρίνει το περιεχόμενο της μελέτης, αλλά η απόφασή του πρέπει να ακολουθήσει των υποδείξεων των αρμοδίων, δηλαδή του Υπ. Πολιτισμού.
“Ακριβώς αυτό δεν πρέπει να κάνουμε. Να προβούμε σε κρίσεις αισθητικής φύσεως. Δεν είναι αυτή η δουλειά μας” ανέφερε χαρακτηριστικά προς το σώμα ο κ. Γιαλόγλου, διευκρινίζοντας πως, “Αυτά πρέπει να είναι λυμένα για να αποφασίσουμε. Η μελέτη μπορεί να είναι τέλεια, αλλά δεν είμαστε εμείς οι άνθρωποι που θα κάνουμε τέτοιου είδους κρίσεις”.
Ως εκ τούτου, τεκμηρίωσε την καταψήφισή του στην πρόταση της Δημοτικής Αρχής να εγκριθεί μία μελέτη που δεν έχει πρωτίστως το “πράσινο φως” από το Υπ. Πολιτισμού, λέγοντας τα εξής: “Η μειοψηφία η δική μου έγκειται στο γεγονός ότι πρέπει πρώτα να πάει στο Υπ. Πολιτισμού και αφού λάβει τις όποιες παρατηρήσεις του Υπουργού και διορθωθεί, να έρθει μετά προς έγκριση, αφού προηγηθεί και η διαβούλευση με τους περιοίκους”.
Σε παρόμοιο τόνο και η ανεξάρτητη δημοτική σύμβουλος, Μαρίζα Αγγελοπούλου, ασκώντας έντονη κριτική προς τη Δημοτική Αρχή για την απουσία επαφής με το Υπ. Πολιτισμού, επεσήμανε πως η συζήτηση του δημοτικού συμβουλίου γίνεται άσκοπα και προσθέτει καθυστέρηση στις κινήσεις που έπρεπε να είχε κάνει ο Δήμος στην κατεύθυνση της συμμόρφωσης που απαιτεί το ΣτΕ.
“Τρία πράγματα να πω. Έχουμε το ΣτΕ, έχουμε τη συμμόρφωση, έχουμε την απαίτηση συμμόρφωσης και συνεπώς την απαίτηση εγκρίσεως του Υπ. Πολιτισμού και έχουμε μία τεράστια καθυστέρηση. Το μόνο που έχουμε μία ξεκάθαρη καθυστέρηση” ανέφερε σχολιαστικά η ίδια, σημειώνοντας μάλιστα πως, “Υπάρχει νομοθεσία. Και η νομοθεσία πρέπει να ακολουθείται. Και λυπάμαι αλλά θέλει μία φοβερή επιμονή. Δεν μπορούμε να αγνοούμε αυτά τα πράγματα. Συνεπώς, δώρον άδωρον η σημερινή απόφαση”.
Θέλησε να συμπληρώσει τέλος πως, “Νομίζω πρέπει να επιδιώκετε την επαφή με τις Υπηρεσίες του Υπ. Πολιτισμού. Είναι νομοθετικά σύμμαχος το Υπ. Πολιτισμού. Δεν έχουμε άλλον τρόπο. Δεν υπάρχει περιθώριο να χάνουμε χρόνο”.
Από την πλευρά του, το μέλος της ελάσσονος μειοψηφίας, Κομνηνός Στρογγύλης επέμεινε στο ότι θα έπρεπε η μελέτη να προωθηθεί πρώτα στο Υπ. Πολιτισμού, αλλά να έχει πραγματοποιηθεί και ουσιαστική διαβούλευση με τους περίοικους.
“Θα συμφωνήσω στο εξής. Άρτιες μελέτες μπορεί να γίνονται. Αλλά είναι υποχρέωση των δημοτικών συμβουλίων αυτά όλα να μπαίνουν και σε μία διαβούλευση. Ότι και να σχεδιάζει και να αποφασίζει το δημοτικό συμβούλιο, εάν δεν έχει τη σύμφωνη γνώμη των δημοτών, των Επιτροπών Διαβούλευσης και αν στείλουμε αυτή τη μελέτη, έχουμε τη σύμφωνη γνώμη των δημοτών της περιοχής;” ρώτησε σε ρητορικό τόνο ο δημοτικός σύμβουλος.
Τέλος ο επικεφαλής της Κίνησης Πολιτών Σύρου, Παύλος Χρυσαφίδης ψήφισε “παρών”, εκφράζοντας την απορία αν πράγματι το Υπ. Πολιτισμού πρέπει να γνωρίζει τη βούληση του συμβουλίου, (σσ. παρά το ότι ήδη προ μηνών έχει ληφθεί σχετική απόφαση συμμόρφωσης και εκπόνησης μελέτης), όπως και τα μέλη της Δημοτικής Αρχής Απ. Ρουσσουνέλος, Δ. Σαγκινέτος και Μ. Αρμακόλας. Υπέρ της λήψης άσκοπης απόφασης από το δημοτικό συμβούλιο ψήφισαν οι κκ. Κοσμάς, Αθανασίου, Μενδρινού, Βακόνδιος καθώς και ο πρόεδρος του ΔΣ.
Η μελέτη οδεύει ούτως ή άλλως στο Υπ. Πολιτισμού, αλλά με καθυστέρηση
Αν και το δεύτερο έγγραφο του ΣτΕ τον Ιανουάριο του 2019 απαιτούσε άμεσες κινήσεις από τον Δήμο και έδινε τρίμηνο περιθώριο κινήσεων συμμόρφωσης, ωστόσο, με τις κινήσεις της Δημοτικής Αρχής η μελέτη φθάνει στο Υπ. Πολιτισμού με σοβαρή καθυστέρηση, αφού για ακόμη μία σεζόν, οι επιχειρηματίες της περιοχής θα πρέπει να δουλέψουν στις υπάρχουσες προβληματικές συνθήκες (βλ. Κατεστραμμένα δάπεδα, ανύπαρκτος φωτισμός κλπ).
Όπως συμπερασματικά διαπιστώνεται από τα ανωτέρω, η μη έγκριση της μελέτης από το δημοτικό συμβούλιο στον παρόντα χρόνο, δεν δημιουργεί πρόβλημα στην προώθηση του έργου, απλά ως διαδικασία “γέννησε” νέες καθυστερήσεις, αφού αυτή θα μπορούσε να είχε αποσταλεί αμέσως μετά από τη σύνταξή της, που έγινε προ μηνών.
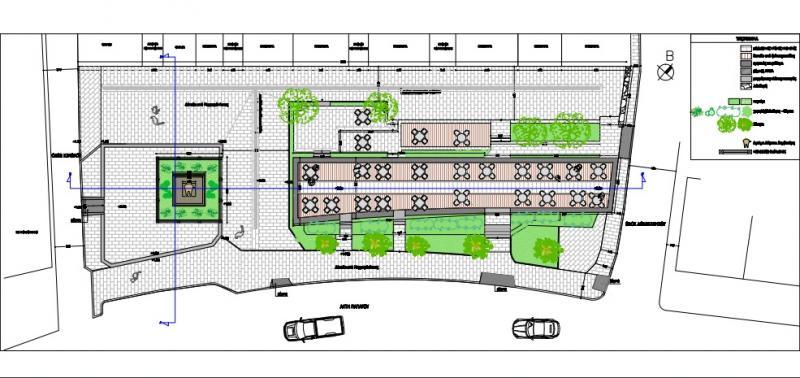
Προς υπενθύμιση στους αναγνώστες, πρέπει να αναφερθεί πως πλέον το Υπ. Πολιτισμού θα πρέπει να αξιολογήσει τις βασικές επεμβάσεις, δηλαδή την καθαίρεση του τμήματος που βρίσκεται στην πλευρά του ξενοδοχείου, την τοποθέτηση του αγάλματος στο σημείο, αλλά και τις εργασίες συντήρησης του τμήματος των τραπεζοκαθισμάτων.
Η υπεύθυνη της Τεχνικής Υπηρεσίας για την εν λόγω μελέτη δε, κ. Σαμουτζάκη, η οποία και παρέστη στη συνεδρίαση, διευκρινιστικά για το άγαλμα, ανέφερε τα εξής: “Η βάση του αγάλματος είναι μέρος του αγάλματος και την έχει διαμορφώσει ο γλύπτης. Όπως και τον περιβάλλοντα χώρο γύρω από το άγαλμα, δηλαδή κάποια κάγκελα που έχουν μπει και κάποιες φυτεύσεις”.