Ένταξη αθλητικών εγκαταστάσεων του Δήμου Νάξου & Μικρών Κυκλάδων στο Πρόγραμμα ΦΙΛΟΔΗΜΟΣ

Δύο σημαντικά αθλητικά έργα θα υλοποιηθούν στον Δήμο μας, μετά την ένταξη στο Πρόγραμμα «ΦΙΛΟΔΗΜΟΣ» της Πράξης «Κατασκευή και βελτίωση αθλητικών εγκαταστάσεων», συνολικού προϋπολογισμού 713.000 ευρώ, με φορέα υλοποίησης τον Δήμο.

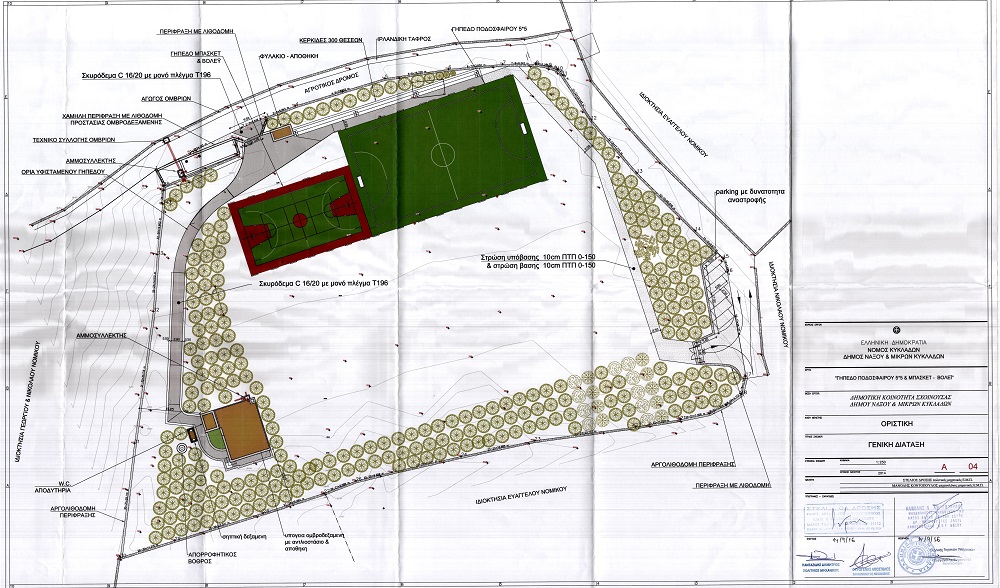
Τα έργα αφορούν στην κατασκευή νέου γηπέδου 5Χ5, μπάσκετ και βόλεϊ στη Σχοινούσα, προϋπολογισμού 595.000 ευρώ, καθώς και στην κατασκευή ηλεκτροφωτισμού στο γήπεδο του Αγίου Αρσενίου, προϋπολογισμού 117.800 ευρώ.  

Διαφήμιση