Θετικές εξελίξεις δρομολογούνται για να ανακουφίσουν το δρομικό κίνημα στη Σύρο, καθώς επίσης τους λάτρεις του στίβου, αλλά και συνολικά των μικρών και μεγαλύτερων αθλητών του νησιού που αγαπούν τον κλασικό αθλητισμό, οι οποίες εστιάζουν στην πολυπόθητη αποκατάσταση του δημοτικού σταδίου Πευκακίων.
Η δέσμευση καταβολής υψηλής χρηματοδότησης από το Υπουργείο Αθλητισμού και τον Υφυπουργό Αθλητισμού, Γιώργο Βασιλειάδη προς τον Δήμο Σύρου – Ερμούπολης που θα ανέλθει ή και θα ξεπεράσει το ποσό των 300 χιλ. ευρώ από πρόγραμμα Δημοσίων Επενδύσεων του αρμόδιου Υπουργείου έρχεται να εμπνεύσει αισιοδοξία στην τοπική κοινωνία, που επί πολλές δεκαετίες στερήθηκε ένα αξιοπρεπές, ασφαλές και σύγχρονο δημοτικό προπονητήριο.
Η θετική στάση του Υφυπουργού, κ. Βασιλειάδη που εκφράστηκε κατηγορηματικά τόσο προς τον Δήμαρχο, Γιώργο Μαραγκό, τον Αντιδήμαρχο Τεχνικών Υπηρεσιών, Φραγκίσκο Βακόνδιο, τον εντεταλμένο Δημοτικό Σύμβουλο, Γουλιέλμο Πρίντεζη, τους υπηρεσιακούς παράγοντες του Δήμου, όσο όμως και προς τους κυβερνητικούς βουλευτές κκ. Συρμαλένιο, Συρίγο και Μανιό στο πλαίσιο της προγραμματισμένης συνάντησής τους με τον ίδιο, στο γραφείο του στην Αθήνα, την περασμένη Πέμπτη, ήρθε σε συνέχεια των πρώτων επαφών τους τον Ιούλιο του 2017 στη Σύρο με αφορμή τη διεξαγωγή του LG AEGEAN BALL FESTIVAL, γεννώντας ικανοποίηση αναφορικά με ένα σοβαρό και πολυετές αίτημα της τοπικής κοινωνίας.
Στην ίδια συνάντηση, συμμετείχαν ακόμη δύο εκπρόσωποι από τον Σύλλογο Δρομέων της Σύρου και ειδικότερα οι κκ. Παλαμάρης και Μεσσάρης που έχουν καταβάλλει σημαντικό αγώνα κι έχουν ασκήσει ιδιαίτερη πίεση για τη δρομολόγηση ενεργειών που θα ωφελήσουν πρωτίστως την κοινότητα του κλασικού αθλητισμού στη Σύρο, όπως και συνολικά τα μέλη του εν λόγω Συλλόγου.
Διευκρινίζεται πως, το έργο της αποκατάστασης του δημοτικού σταδίου θα απαιτήσει και χρηματοδότηση από την πλευρά του Δήμου Σύρου – Ερμούπολης, με τη σχετική πρόταση να προετοιμάζεται για να συζητηθεί και στο δημοτικό συμβούλιο.
Εξ αρχής θετικός ο Υφυπουργός Αθλητισμού
“Η επίσκεψη που πραγματοποιήθηκε στο γραφείο του Υφυπουργού ήρθε σε συνέχεια της συνάντησης και συμφωνίας που είχαμε κάνει από τον φετινό Ιούλιο, οπότε και παρευρέθηκε στη Σύρο ο κ. Υφυπουργός επί τη αφορμή του LG AEGEAN BALL FESTIVAL. Τότε του είχαμε θέσει όλα τα ζητήματα για τις ταλαιπωρημένες και ακατάλληλες αθλητικές υποδομές του νησιού κι έδειξε πολύ μεγάλο ενδιαφέρον για να μπορέσει κι εκείνος ως Υπουργείο να συνδράμει στην αποκατάσταση κάποιων αθλητικών εγκαταστάσεων” δήλωσε αρχικά ο Δήμαρχος, Γιώργος Μαραγκός, γνωστοποιώντας μάλιστα πως προς τον κ. Βασιλειάδη, το θέμα της κατάστασης των αθλητικών χώρων και ειδικότερα του σταδίου “τέθηκε μετ΄ επιτάσεως”.
Δεδομένου ότι από την πλευρά του Υφυπουργού στη συνάντηση του Ιουλίου ζητήθηκε “η εκπόνηση μίας οριστικής κι εγκεκριμένης μελέτης για το έργο” που θα προσδιόριζε και θα επεσήμανε πως το ύψος του κόστους θα καλυφθεί εξ ημισείας από το Υπουργείο και τον Δήμο, η Δημοτική Αρχή έθεσε την υπόθεση του σταδίου Πευκακίων σε προτεραιότητα. “Αυτό που παρουσιάσαμε στον Υφυπουργό ήταν η οριστική μελέτη για την αποκατάσταση του σταδίου Πευκακίων την οποία “τρέξαμε” μετά τη συνεννόηση του Ιουλίου” διευκρίνισε ο Δήμαρχος αναφορικά με το περιεχόμενο της πρόσφατης συνάντησης με τον κ. Βασιλειάδη, γνωστοποιώντας μάλιστα πως, “κατά απόλυτη προτεραιότητα δώσαμε εντολή για να προωθηθεί η μελέτη και τα τεύχη του διαγωνισμού και η Τεχνική Υπηρεσία μας είχε την ετοιμότητα εντός ενός μήνα να ανταποκριθεί”.

Κατόπιν της συζήτησης με τον Υφυπουργό, ο κ. Μαραγκός θέλησε να δηλώσει πως η στάση του υπήρξε άκρως θετική, όπως άλλωστε είχε δηλωθεί εξ αρχής, αναφέροντας προς την εφημερίδα χαρακτηριστικά πως, “ο Υφυπουργός δεσμεύθηκε και περιμένει την τελική αναμόρφωση του προϋπολογισμού για να δει τα αδιάθετα ποσά και αν είναι εφικτό να εντάξει το ποσό μέσα στον προϋπολογισμό τον Οκτώβριο και ο Δήμος μας με πρόβλεψη πολυετή (2018 και 2019) να υπολογίσει τα χρήματα που θα βάλει”.
Κληθείς να κάνει γνωστή τη χρονική εκτίμηση υλοποίησης του έργου που χωρίζεται σε τρεις φάσεις, ο ίδιος ο Δήμαρχος επεσήμανε πως, “Είμαστε αποφασισμένοι να το προωθήσουμε μέσα στο πρώτο τρίμηνο του 2018 και θα έλεγα και μία αισιόδοξη πρόβλεψη εντός του 2018 να έχει υλοποιηθεί”.
Αναφορικά με τη στάση του κ. Βασιλειάδη, ο Γιώργος Μαραγκός άδραξε την ευκαιρία να εκφράσει τις ευχαριστίες του για το “σύγχρονο προπονητήριο υψηλών προδιαγραφών” στην περιοχή των Πευκακίων, αλλά και για τη συνδρομή του αρμόδιου Υπουργείου στη βελτίωση του δημοτικού γηπέδου ποδοσφαίρου Ερμούπολης. “Γι αυτή την εξέλιξη θέλω να ευχαριστήσω τον κ. Βασιλειάδη και για το δημοτικό γήπεδο Ερμουπόλεως κοντά στη ΔΕΗ με προϋπολογισμό 200 χιλ. ευρώ” σημείωσε χαρακτηριστικά.
Έργο σε τρεις φάσεις. “Αγώνας δρόμου” από την Τεχνική Υπηρεσία για τη μελέτη
Αναφορικά με το περιεχόμενο της μελέτης αποκατάστασης για την οποία η Τεχνική Υπηρεσία έκανε “αγώνα δρόμου” όπως σημείωσε ο Αντιδήμαρχος Τεχνικών Υπηρεσιών προκειμένου ο Δήμος να είναι έτοιμος σε κάθε επίπεδο στη συνάντηση με τον κ. Βασιλειάδη την περασμένη Πέμπτη, μίλησε ο ίδιος, παρουσιάζοντας τις λεπτομέρειες του έργου.
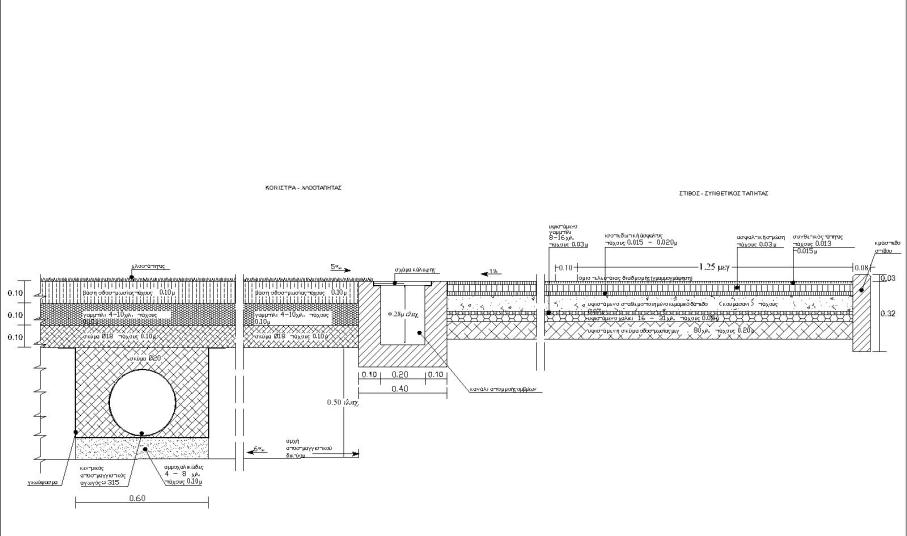
“Η μελέτη έγινε από την Τεχνική Υπηρεσία και θέλω να ευχαριστήσω ιδιαίτερα αυτούς που δούλεψαν και ιδιαίτερα τον διευθυντή τον κ. Διακοδημητρίου, την κα Ελεάννα Σαμουτζάκη καθώς και τον κ. Μαραγκό τον προϊστάμενο του Τμήματος Ηλεκτρομηχανολογικών Εγκαταστάσεων και Έργων που έκανε τη μελέτη για τον ηλεκτροφωτισμό και τις εγκαταστάσεις του σταδίου. Αυτήν τη μελέτη το τελευταίο διάστημα την είχαμε θέσει σε προτεραιότητα και πράγματι ολοκληρώθηκε άμεσα” δήλωσε αρχικά, επισημαίνοντας πως, η πρώτη φάση της συνολικής παρέμβασης περιλαμβάνει αποστραγγιστικό σχέδιο, τις διαμορφώσεις των εξωτερικών χώρων, του χώρου του στίβου και των άλλων χώρων των κλασικών αθλημάτων, ενώ ακολουθούν δύο εξίσου σημαντικές φάσεις.

Σύμφωνα με αυτές, το δεύτερο βήμα εστιάζει στην κάλυψη των ηλεκτρολογικών εγκαταστάσεων καθώς όμως και στην αποκατάσταση κερκίδων, περιφράξεων και συνολικά του ηλεκτροφωτισμού του χώρου, ενώ η τελευταία φάση αφορά στον χώρο των κτιριακών υποδομών.
Στο πλαίσιο της συνάντησης με τον κ. Βασιλειάδη, κατέστη σαφές πως, ο σημερινός κλειστός χώρος έχει έκθεση επικινδυνότητας, γεγονός που όπως υπογράμμισε ο Δήμαρχος, “θα σημάνει την κατεδάφισή του αφού δεν μπορεί να χρησιμοποιηθεί”. Ωστόσο, τονίσθηκε πως στον ίδιο χώρο, θα προγραμματισθούν εργασίες εξωραϊσμού, αλλά και διαμόρφωσης αποδυτηρίων, wc καθώς όμως και η κατασκευή ενός αναψυκτηρίου για το επισκέψιμο κοινό.
“Με τη μελέτη αυτή ευνοείται η ανάπτυξη πέντε αθλημάτων όπως ο στίβος, τα 100 μέτρα, μήκος, ύψος και σφαίρα” ανέφερε μεταξύ άλλων ο Αντιδήμαρχος Τεχνικών Υπηρεσιών, εξηγώντας μάλιστα πως, το κομμάτι των δύο πρώτων φάσεων (διαμόρφωση εξωτερικών χώρων, τοποθέτηση ταρτάν χλοοτάπητα και εγκατάσταση ηλεκτροφωτισμού) προϋπολογίζεται σε 350 και 200 χιλ. ευρώ αντίστοιχα.
“Ουσιαστικά για τις δύο πρώτες φάσεις τα μισά χρήματα θα τα έβαζε το Υπουργείο Αθλητισμού και τα άλλα ο Δήμος” επανέλαβε ο Φραγκίσκος Βακόνδιος, υπογραμμίζοντας μάλιστα πως, “συνεννοηθήκαμε με τον Υφυπουργό ώστε να προσπαθήσουμε να φτιάξουμε και το γήπεδο του μπάσκετ που δεν περιλαμβανόταν στη μελέτη, να ελέγξουμε αν γίνεται να αποκατασταθεί και η κερκίδα στη δυτική πλευρά προς την οδό Καποδιστρίου καθώς επίσης και τα αποδυτήρια και τα wc και χώρος για κάποιο αναψυκτήριο”.

Από την πλευρά του, τόνισε μάλιστα πως, “έχουμε δεσμευθεί μέσα στις επόμενες δέκα ημέρες να φτιάξουμε τη μελέτη για το γήπεδο του μπάσκετ, τις μικρές κτιριακές υποδομές και να προϋπολογίσουμε το κόστος για την εξέδρα στη δυτική πλευρά ώστε να στείλουμε κι αυτήν την μελέτη στο Υπουργείο για να εξετασθεί αν γίνεται να βάλει κάτι επιπλέον ο Δήμος και το Υπουργείο με σκοπό να οριστικοποιηθεί το ύψος της χρηματοδότησης”.
Σε συνολική αναφορά του κόστους προέβη στις δηλώσεις του και ο Δήμαρχος εξηγώντας πως για ολόκληρο το έργο που θα περιλαμβάνει όσα προαναφέρθηκαν “ο προϋπολογισμός του εκτιμάται ότι θα ανέλθει σε ένα ποσό της τάξεως των 630 – 650 χιλ. ευρώ”.

“Σχεδόν κανένας δεν πίστευε ότι θα υπήρχε εξέλιξη. Εμείς προχωράμε”
Πέραν των κκ. Μαραγκού και Βακόνδιου σε δηλώσεις αναφορικά με τη συνάντηση και τη δέσμευση του Υφυπουργού στο κομμάτι της χρηματοδότησης που ανάβει το “πράσινο φως” για την αποκατάσταση του δημοτικού σταδίου Πευκακίων και τη λειτουργία του – ει δυνατόν κι εντός του 2018 – ως σύγχρονου προπονητηρίου κλήθηκε να προβεί και ο ενταταλμένος δημοτικός σύμβουλος για θέματα Αθλητισμού, Γουλιέλμος Πρίντεζης.
“Η εξέλιξη αυτή είναι πάρα πολύ σημαντική. Είναι το “Α και το Ω” για το δρομικό κίνημα στη Σύρο και φυσικά για τους φίλους του στίβου. Δεν υπήρχε στάδιο στη Σύρο για να προπονηθεί ο κόσμος και ήταν ένα μεγάλο θέμα εδώ και μία 20ετία ίσως και παραπάνω” σχολίασε αρχικά κ. Πρίντεζης, αναγνωρίζοντας το σοβαρό έργο της Τεχνικής Υπηρεσίας που υπήρξε καθοριστικό για τη δέσμευση του Υφυπουργού Αθλητισμού.
“Από τις Τεχνικές Υπηρεσίες “έτρεξαν” τις μελέτες σε πραγματικά σύντομο χρόνο και είχαν επικοινωνήσει με τον Υφυπουργό κ. Βασιλειάδη. Ήταν θετικός. Από το καλοκαίρι το διαπιστώσαμε μάλιστα, όταν επισκέφθηκε και το νησί για το LG AEGEAN BALL FESTIVAL” πρόσθεσε ο κ. Πρίντεζης, σημειώνοντας παράλληλα πως η αποκατάσταση του δημοτικού σταδίου θα ευνοήσει και τη μαθητική κοινότητα του νησιού, πέραν των αθλητών. “Αυτή η εξέλιξη είναι σημαντική για όλον τον κόσμο και τα σχολεία και τους αθλητές και όσους ασχολούνται με τον στίβο” πρόσθεσε μεταξύ άλλων, εκφράζοντας την πεποίθησή του πως η απαίτηση λειτουργίας του σταδίου από την τοπική κοινωνία με ορθό και ασφαλή τρόπο επιβεβαιώνεται και από τις διάφορες σχετικές αθλητικές διοργανώσεις. “Πιστεύουμε πως μετά από όλες τις διοργανώσεις που γίνονται όπως το Τρίαθλον, το Syros Run, τις δρομικές εκδηλώσεις των χωριών, έπρεπε να φτιαχτεί στο στάδιο και να ωριμάσουν οι μελέτες, κάτι που έγινε” ανέφερε, επισημαίνοντας πως ο Δήμος “πραγματοποίησε τη συνάντηση με τον κ. Βασιλειάδη προετοιμασμένος”.
Ερωτηθείς για τον χρονικό ορίζοντα που εκτιμά πως θα μπορεί να έχει ολοκληρωθεί το έργο, ο κ. Πρίντεζης από την πλευρά του, υπογράμμισε πως, “δική μου εκτίμηση είναι πως θα είναι πολύ σύντομα το έργο ολοκληρωμένο, εκτός απροόπτου. Εμείς ως Δήμος και η Τεχνική Υπηρεσία είμαστε έτοιμοι. Ο κ. Βασιλειάδης μας είπε ότι στην τελευταία αναμόρφωση του 2017 ίσως προλάβει να εντάξει τα χρήματα”. Συμπλήρωσε μάλιστα πως, στην περίπτωση που το ποσό από την πλευρά του Υπουργείο Αθλητισμού δεν ενταχθεί τέλος του τρέχοντος έτους, έλαβαν τη δέσμευση για ένταξή του “τους πρώτους μήνες του 2018”.
Υπογραμμίζοντας και την παρουσία των κυβερνητικών βουλευτών των Κυκλάδων στη συνάντηση με τον κ. Βασιλειάδη, ο κ. Πρίντεζης ολοκληρώνοντας τις δηλώσεις του, σημείωσε πως, “Υπάρχει εξέλιξη και δρομολογείται μία σημαντική υπόθεση για τη Σύρο και αυτή η εξέλιξη είναι μία απόδειξη της δουλειάς που έχει γίνει κι έχουμε κάνει πριν πάμε στο Υπουργείο και είναι μία απάντηση προς όσους μας χλευάζουν”, συμπληρώνοντας μάλιστα κατηγορηματικά πως για τη συγκεκριμένη προσπάθεια, “σχεδόν κανένας Συριανός δεν πίστευε ότι θα υπήρχε εξέλιξη αλλά εμείς προχωράμε”.
Αναγνωρίζεται το έργο της Τεχνικής Υπηρεσίας
Με φόντο τον αυξημένο φόρτο εργασίας των υπαλλήλων της Τεχνικής Υπηρεσίας, ο αρμόδιος Αντιδήμαρχος θέλησε δημοσίως να τους ευχαριστήσει για το έργο που ανέπτυξαν και δη σε ασφυκτικό χρόνο, ώστε ο Δήμος να καταφέρει να αποσπάσει τη σχετική δέσμευση του Υφυπουργού Αθλητισμού. “Η προσπάθεια που γίνεται είναι αξιόλογη και από την Τεχνική Υπηρεσία και από το Τμήμα Αθλητισμού με τη συνεργασία που έχουμε και από κοινού προσπαθούμε να κάνουμε ό,τι καλύτερο μπορούμε για να αναβαθμίσουμε τις υποδομές μας. Μακάρι να καταφέρουμε άμεσα την αναβάθμισή του για να το απολαύσει ο κόσμος, τα παιδιά, οι αθλητές και γενικά οι κάτοικοι της Σύρου. Θέλω να ευχαριστήσω τους υπαλλήλους και ιδιαίτερα την κ. Σαμουτζάκη, τον κ. Μαραγκό και τον κ. Διακοδημητρίου” ανέφερε ο Φραγκίσκος Βακόνδιος, στις δηλώσεις του οποίου ο Γουλιέλμος Πρίντεζης πρόσθεσε – παρομοίως - τα παρακάτω: “Το γεγονός της διεκδίκησης μίας μεγάλης χρηματοδότησης και η προετοιμασία μας σε επίπεδο μελετών είναι μεγάλη υπόθεση. Δεν θα μπορούσαμε να πάμε στο Υπουργείο χωρίς μελέτες στα χέρια μας. Ειλικρινά αξίζουν συγχαρητήρια οι άνθρωποι της Τεχνικής Υπηρεσίας που με τόσο φόρτο εργασίας και σε σύντομο χρονικό διάστημα κατάφεραν να πάμε έτοιμοι στο Υπουργείο. Σειρά έχουν κι άλλοι αθλητικοί χώροι”.