Η θετική γνώμη της Διαχειριστικής Αρχής εκκινεί τις διαδικασίες για την δημοπράτηση του νέου σχολείου

Προς δημοπράτηση το έργο του σχολείου της Βάρης

Μόλις εχθές έλαβε ο Δήμος την έγκριση της διακήρυξης από την Ειδική Υπηρεσία Διαχείρισης Νοτίου Αιγαίου για την έναρξη της διαδικασίας δημοπράτησης του έργου «Επισκευή-Επέκταση Δημοτικού Σχολείου Βάρης ν. Σύρου και Ανέγερση Νηπιαγωγείου».

Έναν χρόνο μετά την θριαμβολογία που εξέφραζε η δημοτική αρχή για την άμεση εκκίνηση των διαδικασιών δημοπράτησης του έργου, λόγω της πλήρους ωριμότητας του και τις επισημάνσεις της «Κοινής Γνώμης» για την μετάθεση του χρονικού ορίζοντα υλοποίησης του, όπως και έγινε, πλέον μπαίνει στην τελική ευθεία προκήρυξης του διαγωνισμού.

Ως πρώτη ενέργεια το θέμα τέθηκε ως έκτακτο εκτός ημερήσιας διάταξης στη χθεσινή συνεδρίαση της Οικονομικής Επιτροπής του Δήμου Σύρου-Ερμούπολης, λαμβάνοντας την ομόφωνη έγκριση για τη διάθεση της πίστωσης, την έγκριση των τευχών δημοπράτησης και την κατάρτιση των όρων δημοπράτησης του ανοικτού διαγωνισμού.

Τα βήματα από εδώ και πέρα πλέον είναι στο αμέσως επόμενο Δημοτικό Συμβούλιο, την Τετάρτη 15 Φεβρουαρίου, θα οριστεί η αρμόδια, σύμφωνα με τον νόμο, επιτροπή για τη διενέργεια του διεθνούς διαγωνισμού. Θα γίνει η προβλεπόμενη κατά το νόμο δημοσίευση στις εφημερίδες ώστε να ακολουθήσει η διαδικασία κατάθεσης προσφορών προκειμένου εντός του πρώτου εξαμήνου του 2017 να γίνει η συμβασιοποίηση του έργου.

Ο συνολικός προϋπολογισμός του έργου ανέρχεται σε 2.623.840 ευρώ, θα χρηματοδοτηθεί από το πρόγραμμα ΕΣΠΑ 2014 – 2020 και η κατασκευή του έργου αναμένεται να διαρκέσει περίπου 2 χρόνια.

Το έργο αυτό το αναμένει επί χρόνια η τοπική κοινωνία, καθώς οι σχολικές υποδομές του νησιού, όλων των βαθμίδων, είναι γερασμένες, παρουσιάζοντας σημεία φθοράς.

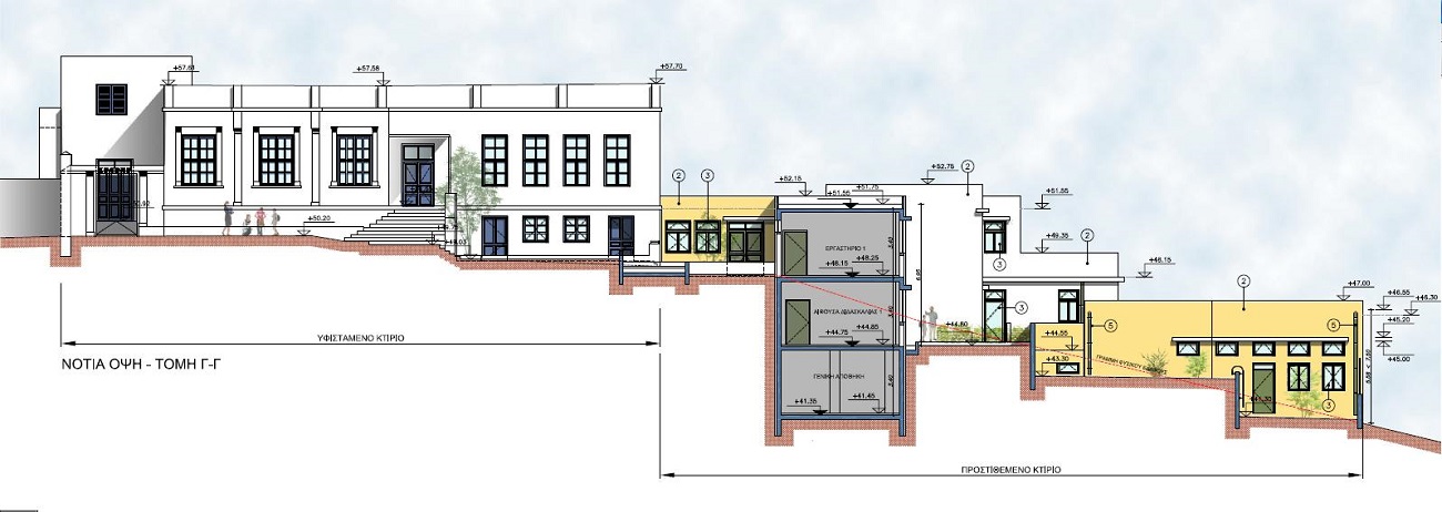
Το έργο αφορά στην κατασκευή ενός ενιαίου συγκροτήματος κτιρίων, το οποίο θα στεγάσει το Δημοτικό Σχολείο στο νέο κτίριο και το Νηπιαγωγείο στο υφιστάμενο κτίριο.

Το συγκεκριμένο σχολείο θα έχει δυναμικότητα φιλοξενίας περισσότερων από 160 μαθητών, εξυπηρετώντας τις σχολικές ανάγκες της νότιας Σύρου.

Συγκεκριμένα, το Ολοήμερο Δημοτικό Σχολείο θα είναι δυναμικότητας 120 μαθητών, θα έχει 6 αίθουσες διδασκαλίας, 3 αίθουσες εργαστηρίων, αίθουσα πολλαπλών χρήσεων, βιβλιοθήκη, χώρους διοίκησης, υπόστεγο γυμναστικής και λοιπούς βοηθητικούς χώρους.

Το Ολοήμερο Νηπιαγωγείο Βάρης θα είναι δυναμικότητας 40-50 νηπίων, θα έχει 2 αίθουσες εργασίας, 1 αίθουσα πολλαπλών χρήσεων και λοιπούς χώρους διοίκησης και βοηθητικούς.

Αιτιολογήθηκε η συμπερίληψη του στον προϋπολογισμό

Διαφήμιση

Το θέμα που είχε τεθεί είναι το εάν θα έπρεπε εξ αρχής να είχε προϋπολογιστεί μηδενικό ποσό για το σχολείο της Βάρης, όπως είχε επισημανθεί και στις παρατηρήσεις της Αποκεντρωμένης στην κατάρτιση του προϋπολογισμού.

Ο Αρμόδιος Αντιδήμαρχος Οικονομικών, Γιώργος Παπαμανώλης, υπενθύμισε στην Επιτροπή ότι «είχα διατυπώσει τότε πολιτική και οικονομοτεχνική διαφωνία. Βλέπετε, ότι επειδή ακριβώς είχαμε βάλει ποσό στο σχολείο της Βάρης μπορούμε σήμερα και καταρτίζουμε τεύχη δημοπράτησης έτσι ώστε να πάει άμεσα για δημοσίευση και να έχουμε όσο το δυνατόν ταχύτερα την έναρξη του έργου. Οπότε ορισμένες φορές οι διαφωνίες ή οι διαφορετικές επιλογές σε τέτοια θέματα έχουν τον λόγο τους και τώρα μπορούμε και προχωράμε επειδή ακριβώς είχαμε προϋπολογίσει 1,7 εκ. ευρώ για το συγκεκριμένο έργο στον προϋπολογισμό του Δήμου και δεν είχαμε βάλει το μηδενικό ποσό, που μας ζήτησε με παρατήρηση η Αποκεντρωμένη».

Όραμα του Δήμου Ποσειδωνίας

«Ευτυχές γεγονός» χαρακτήρισε την εξέλιξη αυτή ο Αντιδήμαρχος Διοικητικών Υπηρεσιών και μέλος της Οικονομικής Επιτροπής, Αλέξης Αθανασίου, ο οποίος δράττοντας την ευκαιρία υπενθύμισε ότι «το συγκεκριμένο ήταν ένα όραμα της τελευταίας δημοτικής αρχής του Δήμου Ποσειδωνίας».

Μιλώντας σε καθαρά προσωπικό επίπεδο είπε πως «Τελικά μας πήρε 10 χρόνια από την στιγμή που γίνανε οι πρώτες ενέργειες για την ανέγερση του νέου Δημοτικού σχολείου Βάρης και του Νηπιαγωγείου. Κάποιοι είχαν πει ότι η επιλογή του Δήμου Ποσειδωνίας τότε, που δεν είχε μεγάλη τεχνική υπηρεσία, καθώς είχε μόνο 3 μηχανικούς, να πάει στην «Εγνατία» ήταν λάθος. Το λάθος ήταν ότι ουδείς ασχολήθηκε μετά το 2010 με την συγκεκριμένη μελέτη και με την «Εγνατία» και γι’ αυτό υπήρξε και η καθυστέρηση τουλάχιστον μίας 4ετίας».

Συμπερασματικά κατέληξε επισημαίνοντας πως «Όταν θέλεις να κάνεις ένα έργο πρέπει να το κυνηγάς. Εμείς τουλάχιστον αυτό έχουμε μάθει και είναι πολύ ευτυχής η συγκυρία που φτάσαμε σήμερα να εγκρίνουμε τη διάθεση πίστωσης».

Από το τέλμα στην απόλυτη ωριμότητα

«Ολοκληρώνεται μία μακρά διαδρομή αναφορικά με την εξέλιξη του συγκεκριμένου έργου, το οποίο έχει το ξεκίνημα από τον πρώην Δήμο Ποσειδωνίας, για το οποίο απαιτήθηκε πολύς χρόνος για να ωριμάσει», σχολίασε ο Δήμαρχος, Γιώργος Μαραγκός.

Με την θετική εξέλιξη που σημειώθηκε δεν παρέλειψε να αποδώσει τα εύσημα στους πρωτεργάτες, αλλά και στις συνεργαζόμενες υπηρεσίες, λέγοντας «Θα ήθελα πρωτίστως να ευχαριστήσω τον πρώην Δήμο Ποσειδωνίας και τον τότε Δήμαρχο, Τζώρτζη Μακρυωνίτη, για τις πρωτοβουλίες που ανέλαβαν για την έναρξη του σχεδιασμού αρχικά και της ωρίμανσης εν συνεχεία του έργου, το οποίο μέσα από διάφορες φάσεις, πέρασε στον ενιαίο Δήμο Σύρου-Ερμούπολης και στη συνέχεια στην «Εγνατία». Για ένα μεγάλο χρονικό διάστημα, όπου δεν υπήρξε η απαιτούμενη βούληση και αποφασιστικότητα να προχωρήσει και από το τέλμα καταφέραμε να το φέρουμε σε απόλυτη ωριμότητα και μέσα από μία πολύ καλή συνεργασία του Δήμου, της «Εγνατίας» και των υπηρεσιών της Περιφέρειας, όπως η Ενδιάμεση Διαχειριστική Αρχή, φτάσαμε σήμερα, με την πλήρη ωρίμανση του έργου, στην έγκριση της πίστωσης».